
Attefallshus 30 m2 till poolen – Poolhus
Vi kallar detta hus för Poolhus och är med sina stora fönsterpartier perfekt som ett extra hus intill poolen. Insida och utsida möts på ett härligt sätt och gränsen mellan ute och inne suddas ut. Vi har skapat ett hus med massor av rymd där du kan färdigställa insidan precis som du önskar.
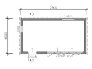
Huset finns i två alternativ. Standardmodellen där fönsterpartiet utgörs av 2 stora fasta fönster samt 2 glasdörrar. Vikdörrmodellen kommer med ett stort exklusivt vikdörrspart i 5 sektioner.
Våra hus byggs i en toppmodern fabrik på västkusten, enligt svensk standard och med svenska byggmaterial. Attefallshuset levereras komplett i sin yttre konstruktion med tak, ytterväggar, fönster och dörrar. Insidan är förberett med isolering i väggar, golv och tak och klädd med OSB väggskivor. Huset är även förberett med elrör i taket. Resten färdigställer du själv.
Levereras färdigmonterat från fabrik och lyfts på plats på din tomt.
Pris standard: 298 000 kr
Pris vikdörr: 358 000 kr
Leveransalternativ: Kan även levereras som byggsats med färdigbyggda väggsektioner som du själv monterar ihop på tomten. Pris byggsats standard 268 000 kr, vikdörr 328 000 kr.
Vill du justera något?
Vi erbjuder tillval och anpassningar av våra hus. Det kan vara allt från att lägga till ett extra fönster, flytta en dörr eller att göra huset större. Kontakta oss för mer information, vi kan anpassa nästan allt efter dina önskemål.
Specifikation
Ladda ner ritning (PDF)
Mått:
Längd: 7,5 meter
Bredd: 4,0 meter
Höjd: 3,5 meter
Ytterväggar: (inifrån och ut)
Invändig väggskiva OSB (levereras lös eller monterad)
Plastfolie
Isolering 145 mm
Reglar 45×145 mm
Vindduk
Läkt
Ytterpanel 22×145 Svea/ Västkustpanel. Grundmålad eller järnvitriol.
Tak: (inifrån och ut)
Innertakskiva (TAKESS)
Plastfolie
Isolering 190 mm
Reglar 45×220 mm
Vindduk
Råspont
Underlagspapp
Golv: (underifrån och in)
Board
Reglar 45×220
Isolering 220mm
Golvspånskiva (lätt skruvad)
Fönster och dörr:
Träfönster, vita, treglas (Svenska Fönster)
Poolhus standard: Glasdörr x2 (Svenska Fönster)
Poolhus vikdörr: Fönster vikparti (Villa Fönster, Villa Orginal 5 delat)
Glasdörr med handtag och lås (Svenska Fönster)
Lister utvändigt, fönsterbleck, under- överbleck






Detaljer
Vi är noggranna med att alla detaljer av våra hus ska hålla hög kvalité och följa svensk byggstandard. Läs mer om olika detaljer av huset, allt från isolering till fuktspärr och fasad.
Vikdörrar
I vår modell ”Poolhus Vikdörr” kommer huset med en 5-sektions kvalitetsdörr från Villa Fönster. Fönstret har hög isolering och kan öppnas helt. Vikpartiet har utåtgående dörrar vilket innebär att det inte tar någon yta av ert rum.

Isolering för åretruntbruk
Husen isoleras med brandsäker stenull i väggar, golv och tak. De är välisolerade och lämpade för åretrunt-användning. Isoleringens tjocklek är:
- yttervägg: 145 mm
- golv: 220 mm
- tak: 190 mm
Husen skruvas ihop och färdigställs på ergonomiska montagebord.

Grundmålad fasad eller järnvitrol
Husen levereras med grundmålad ytterpanel, vilket ger dig friheten att själv välja kulör. Vi erbjuder även möjligheten att få fasaden behandlad med järnvitriol mot en liten extra kostnad. Du väljer själv om du vill ha vertikal eller horisontell panel.

Yttertak med underlagspapp
Husen levereras med yttertak täckt med underlagspapp. Men underlagspapp kan huset stå utomhus i upp till sex månader efter leverans, men vi rekommenderar att ett ytskikt monteras så snart som möjligt. Du väljer själv om du vill lägga tak av takpapp, plåt eller takpannor.

Innerväggar med OSB väggskiva
Innerväggarna är klädda med OSB väggskiva, en högkvalitativ och smidig skiva för innerväggar. Du väljer själv om de ska levereras monterade eller lösa.

Golv med golvspånskivor
Lätt skruvade golvspånskivor ger ett slätt och stabilt golv. Vill du installera el, vatten eller avlopp i golvbjälklaget lossar du ett par skruvar och lyfter på skivan. Du lägger sedan enkelt på det golv du själv önskar.

Innertaket med Tak-ess
Innertak med Tak-ess. Ett utmärkt skivmaterial som ger en fin finish. Skivorna installeras av våra snickare så du får ett hus med färdigt ytskikt när du tittar upp.

El förberett
Vi förbereder det färdiga innertaket med elrör. Behörig elektriker kan dra el till eventuella uttag och spotlights utan att behöva skruva ner takskivorna.

3-glasfönster
3-glasfönster från ledande svenska tillverkare som Svenska Fönster, Traryd eller Elit. Vi samarbetar med svenska leverantörer.

Plåtdetaljer
Husen levereras med plåtdetaljer runt fönster och dörrar. Vi ser till att alla fönster och dörrar installeras korrekt för att maximera fuktskydd och säkra husets långvariga hållbarhet.

Fuktspärr
Under huset installeras väderbeständig PVC så ett de delar som utsätts för mycket fukt aldrig ger med sig. Vi vill skapa en produkt som kan glädja ägare under flera generationer.

Lås från ASSA
Lås och nycklar från ASSA installeras i glasdörrar från Taryd eller Elit. Vi samarbetar med svenska leverantörer.

Produktion och leverans
Det tar normalt omkring 10 – 12 veckor att producera ett standardhus efter det att vi tagit emot din order. Vi reserverar oss för att avvikelser kan förekomma under tider av hög orderingång.
Fabriken
Våra hus produceras på västkusten. Huvudkontor finns i Falkenberg och fabriken bara några mil därifrån där vi gärna tar emot och visar runt. Vi är väldigt stolta över vår anläggning och uppskattar era besök! Ni kan känna på produkten, ställa frågor och se hur vi arbetar när vi skapar några av Sveriges mest prisvärda kvalitetshus. Välkomna!

Leverans
Leveransen sker med långtradare utrustad med en låglastande trailer. Husen lastas på trailern direkt i vår fabrik och transporteras därefter till er. På plats lyfts huset av och placeras på den grund ni har förberett. Observera att leveransen inte ingår i baspriset. Fraktkostnaden varierar normalt mellan 10 000 och 50 000 kronor beroende på er geografiska placering.

Grund
En vanlig lösning är plintgrund, och plintskiss ingår i alla våra hus. Observera att grunden ingår ej i den affär du gör med oss, utan måste utföras av dig eller en lokal entreprenadfirma. Saknar du kontakter har vi gott om referenser runt hela Sverige. Fråga gärna.

Kontakt
Tveka inte att höra av dig till oss, vi svarar snabbt. Vi finns här för dig och hjälper dig med ditt nya attefallshus.
Ring oss
Ring oss vardagar kl 09.00 – 17.00
Tel: 010-650 00 93
Besök oss
Besök vår fabrik 3 mil utanför Falkenberg eller boka ett möte online.
Maila oss
Kontakta oss på kontakt@svenskaskalhus.se. Eller via kontaktformuläret.
Vanliga frågor och svar
Hur kan ni hålla så låga priser?
- Effektivitet och minimalt spill är de viktigaste bitarna för oss. Resultatet blir minimala priser och en minimal miljöpåverkan. Husen byggs i en modern fabrik med den absolut bästa tänkbara utrustningen.
- Vi har ett tight samarbete med våra leverantörer och får genom stora konsekventa inköp mycket bra priser på det material vi använder.
- Vi har en slimmad organisation utan mellanhänder.
- Hög kvalité och helt transparent köpprocess ger nöjda kunder med få reklamationer och eftermarknad.
Jag vill ha mer än det som ingår i erat skalhus, kan ni hjälpa mig?
Vi på Svenska Skalhus fokuserar i första hand på att leverera prisvärda skalhus, vilket gör att vi kan hålla god kvalitet till ett attraktivt pris. Vissa tillval kan vi ordna direkt här på fabriken. Vi erbjuder även material för det fortsatta arbetet, och tack vare våra förmånliga inköpspriser kan du ofta spara en hel del.
För större tillval så som badrum, kök, elinstallationer behöver du anlita lokala hantverkare. Önskar du referenser har vi flera pålitliga kontakter runt om i landet.
Om jag ska bygga i mer i huset är det ni levererar, hur löser jag det mot kommun?
Vi har en ritning på det tomma skalhuset vi bygger. Vill du rita in mer av det du avser göra i denna ritning kan vi hjälpa dig med det. Vi tar ut en avgift på 5 000 kr för justeringar.
Relaterade modeller
Attefallshus Poolhus passar även utmärkt som gäststuga eller hemmakontor. Se och jämför alla våra modeller av attefallshus i storlekar 30–50 kvm.
Grundritning / plintskiss




