
Attefallshus Modern 50 m2
Välkommen till vårt nya Attefallshus på 50 kvadratmeter! En större, ljusare och ännu mer funktionell version av vår populära 30 m²-modell. Med höga fönster, öppna ytor och tidlös design bjuder huset på en harmonisk balans mellan rymd och enkelhet. Perfekt för dig som vill ha extra plats för vardag, arbete eller gäster utan att tumma på känslan av stil och kvalitet.
Våra hus byggs i en toppmodern fabrik på västkusten, enligt svensk standard och med svenska byggmaterial. Attefallshuset levereras komplett i sin yttre konstruktion med tak, ytterväggar, fönster och dörrar. Insidan är förberett med isolering i väggar, golv och tak och klädd med OSB väggskivor. Huset är även förberett med elrör i taket. Resten färdigställer du själv.
Levereras färdigmonterat från fabrik och lyfts på plats på din tomt.
Pris: 399 000 kr
Leveransalternativ: Kan även levereras som byggsats med färdigbyggda väggsektioner som du själv monterar ihop på tomten. Pris byggsats 369 000 kr.
Vill du justera något?
Vi erbjuder tillval och anpassningar av våra hus. Det kan vara allt från att lägga till ett extra fönster, flytta en dörr eller att göra huset större. Kontakta oss för mer information, vi kan anpassa nästan allt efter dina önskemål.
Specifikation
Ladda ner PDF – klicka här
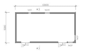
Mått:
Längd: 10,0 meter
Bredd: 5,0 meter
Höjd: 3,9 meter
Ytterväggar: (inifrån och ut)
Invändig väggskiva OSB (levereras lös eller monterad)
Plastfolie
Isolering 145 mm
Reglar 45×145 mm
Vindduk
Läkt
Ytterpanel 22×145 Svea/ Västkustpanel. Grundmålad eller järnvitriol.
Tak: (inifrån och ut)
Innertakskiva (TAKESS)
Plastfolie
Isolering 195 mm
Reglar 45×220 mm
Vindduk
Råspont
Underlagspapp
Golv: (underifrån och in)
Board
Reglar 45×220
Isolering 220mm
Golvspånskiva (lätt skruvad)
Fönster och dörr:
Träfönster, vita, treglas
Glasdörr med handtag och lås
Lister utvändigt, Fönsterbleck, under- överbleck





Detaljer om huset
Vi är noggranna med att alla detaljer av våra hus ska hålla hög kvalité och följa svensk byggstandard. Läs mer om olika detaljer av huset från isolering till fuktspärr och fasad.
Isolering för åretruntbruk
Husen isoleras med brandsäker stenull i väggar, golv och tak. De är välisolerade och lämpade för åretrunt-användning. Isoleringens tjocklek är:
- yttervägg: 145 mm
- golv: 220 mm
- tak: 195 mm
Husen skruvas ihop och färdigställs på ergonomiska montagebord.

Lås från ASSA
Lås och nycklar från ASSA installeras i glasdörrar från Taryd eller Elit. Vi samarbetar med svenska leverantörer.

3-glasfönster
3-glasfönster från ledande svenska tillverkare som Svenska Fönster, Traryd eller Elit. Vi samarbetar med svenska leverantörer.

Fuktspärr
Under huset installeras väderbeständig PVC så ett de delar som utsätts för mycket fukt aldrig ger med sig. Vi vill skapa en produkt som kan glädja ägare under flera generationer.

Grundmålad fasad eller järnvitrol
Husen levereras med grundmålad ytterpanel, vilket ger dig friheten att själv välja kulör. Vi erbjuder även möjligheten att få fasaden behandlad med järnvitriol mot en liten extra kostnad. Du väljer själv om du vill ha vertikal eller horisontell panel.

Yttertak med underlagspapp
Husen levereras med yttertak täckt med underlagspapp. Men underlagspapp kan huset stå utomhus i upp till sex månader efter leverans, men vi rekommenderar att ett ytskikt monteras så snart som möjligt. Du väljer själv om du vill lägga tak av takpapp, plåt eller takpannor.

Plåtdetaljer
Husen levereras med plåtdetaljer runt fönster och dörrar. Vi ser till att alla fönster och dörrar installeras korrekt för att maximera fuktskydd och säkra husets långvariga hållbarhet.

Innerväggar med OSB väggskiva
Innerväggarna är klädda med OSB väggskiva, en högkvalitativ och smidig skiva för innerväggar. Du väljer själv om de ska levereras monterade eller lösa.

Golv med golvspånskivor
Lätt skruvade golvspånskivor ger ett slätt och stabilt golv. Vill du installera el, vatten eller avlopp i golvbjälklaget lossar du ett par skruvar och lyfter på skivan. Du lägger sedan enkelt på det golv du själv önskar.

Innertaket med Tak-ess
Innertak med Tak-ess. Ett utmärkt skivmaterial som ger en fin finish. Skivorna installeras av våra snickare så du får ett hus med färdigt ytskikt när du tittar upp.

El förberett
Vi förbereder det färdiga innertaket med elrör. Behörig elektriker kan dra el till eventuella uttag och spotlights utan att behöva skruva ner takskivorna.

Produktion och leverans
Det tar normalt omkring 10 veckor att producera ett hus efter det att vi tagit emot din order. Vi reserverar oss för att avvikelser kan förekomma under tider av hög orderingång.
Fabriken
Våra hus produceras på västkusten. Huvudkontor finns i Falkenberg och fabriken bara några mil därifrån där vi gärna tar emot och visar runt. Vi är väldigt stolta över vår anläggning och uppskattar era besök! Ni kan känna på produkten, ställa frågor och se hur vi arbetar när vi skapar några av Sveriges mest prisvärda kvalitetshus. Välkomna!

Leverans
Leveransen sker med långtradare utrustad med en låglastande trailer. Husen lastas på trailern direkt i vår fabrik och transporteras därefter till er. På plats lyfts huset av och placeras på den grund ni har förberett. Observera att leveransen inte ingår i baspriset. Fraktkostnaden varierar normalt mellan 10 000 och 50 000 kronor beroende på er geografiska placering.

Grund
En vanlig lösning är plintgrund, och plintskiss ingår i alla våra hus. Observera att grunden ingår ej i den affär du gör med oss, utan måste utföras av dig eller en lokal entreprenadfirma. Saknar du kontakter har vi gott om referenser runt hela Sverige. Fråga gärna.

Kontakt
Tveka inte att höra av dig till oss, vi svarar snabbt. Vi finns här för dig och hjälper dig med ditt nya attefallshus.
Ring oss
Ring oss vardagar 09-17
Tel: 010-650 00 93
Besök oss
Besök vår fabrik i Falkenberg eller boka ett möte online.
Maila oss
Kontakta oss på kontakt@svenskaskalhus.se. Eller via kontaktformuläret
Vanliga frågor och svar
Hur kan ni hålla så låga priser?
- Effektivitet och minimalt spill är de viktigaste bitarna för oss. Resultatet blir minimala priser och en minimal miljöpåverkan. Husen byggs i en modern fabrik med den absolut bästa tänkbara utrustningen.
- Vi har ett tight samarbete med våra leverantörer och får genom stora konsekventa inköp mycket bra priser på det material vi använder.
- Vi har en slimmad organisation utan mellanhänder.
- Hög kvalité och helt transparent köpprocess ger nöjda kunder med få reklamationer och eftermarknad.
Jag vill ha mer än det som ingår i erat skalhus, kan ni hjälpa mig?
Vi fokuserar primärt på skalhus för att kunna producera just dessa så prisvärt som möjligt. Vissa tillval kommer vi kunna ordna åt dig här på fabrik. Vi säljer också gärna material till fortsatt arbete då vi har mycket bra inköpspriser och således kan hjälpa dig spara. För större tillval så som badrum, kök, elinstallationer föredrar vi att du anlitar lokala hantverkare. Önskar du referenser har vi flera pålitliga kontakter runt om i landet.
Om jag ska bygga i mer i huset är det ni levererar, hur löser jag det mot kommun?
Vi har en ritning på det tomma skalhuset vi bygger. Vill du rita in mer av det du avser göra i denna ritning kan vi hjälpa dig med det. Vi tar ut en avgift på 3 500 kr för justeringar. Önskar du ta fram en helt ny bygglovsritning på hus vi ej gjort tidigare kostar detta 5 000 kr.
Kan man få hjälp med bygganmälan?
Ja, detta ingår i alla våra hus. Våra byggkonsulter sköter er anmälan till kommunen. Kostnaden för själva anmälan står ni själva för.
 




